This well-maintained 4-bedroom home sits on a generous 0.21-acre corner lot surrounded by mature trees, offering a quiet, private setting just minutes from everything. The bright interior features hardwood flooring, comfortable living spaces, and a finished lower level ideal for growing families. Pride of ownership is evident throughout. Step outside to your own backyard oasis - an in-ground pool witha stone patio surround, lush landscaping, and multiple entertaining areas create the perfect setting for summer living. Recent updates include: Furnace & A/C (2020), Pool pump (2023), and Skimmer (2021). Walking distance to schools, a 15-minute walk to the lake, and only five minutes to the 401, an ideal location for commuters and families alike. Homes offering this combination of lot size, privacy, and pool rarely come available at this price point. (id:54827)
1:00 pm
Ends at:3:00 pm
| MLS® Number | X12806796 |
| Property Type | Single Family |
| Community Name | Cobourg |
| Equipment Type | Water Heater - Gas, Water Heater |
| Parking Space Total | 5 |
| Pool Type | Inground Pool |
| Rental Equipment Type | Water Heater - Gas, Water Heater |
| Bathroom Total | 2 |
| Bedrooms Above Ground | 4 |
| Bedrooms Total | 4 |
| Appliances | Central Vacuum, Dishwasher, Stove, Window Coverings, Refrigerator |
| Basement Development | Partially Finished |
| Basement Type | N/a (partially Finished) |
| Construction Style Attachment | Detached |
| Cooling Type | Central Air Conditioning |
| Exterior Finish | Brick, Vinyl Siding |
| Foundation Type | Poured Concrete |
| Half Bath Total | 1 |
| Heating Fuel | Natural Gas |
| Heating Type | Forced Air |
| Stories Total | 2 |
| Size Interior | 1,100 - 1,500 Ft2 |
| Type | House |
| Utility Water | Municipal Water |
| Attached Garage | |
| Garage |
| Acreage | No |
| Sewer | Sanitary Sewer |
| Size Depth | 69 Ft |
| Size Frontage | 137 Ft |
| Size Irregular | 137 X 69 Ft |
| Size Total Text | 137 X 69 Ft|under 1/2 Acre |
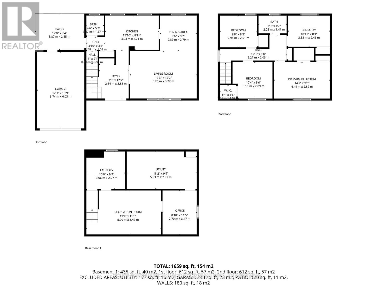
| Level | Type | Length | Width | Dimensions |
|---|---|---|---|---|
| Basement | Office | 2.7 m | 3.47 m | 2.7 m x 3.47 m |
| Basement | Laundry Room | 3.06 m | 2.97 m | 3.06 m x 2.97 m |
| Basement | Utility Room | 5.53 m | 2.97 m | 5.53 m x 2.97 m |
| Basement | Family Room | 5.9 m | 3.47 m | 5.9 m x 3.47 m |
| Main Level | Kitchen | 4.23 m | 2.71 m | 4.23 m x 2.71 m |
| Main Level | Dining Room | 2.89 m | 2.79 m | 2.89 m x 2.79 m |
| Main Level | Living Room | 5.26 m | 3.72 m | 5.26 m x 3.72 m |
| Main Level | Bathroom | 1.37 m | 1.57 m | 1.37 m x 1.57 m |
| Upper Level | Primary Bedroom | 4.44 m | 2.89 m | 4.44 m x 2.89 m |
| Upper Level | Bedroom 2 | 3.16 m | 2.89 m | 3.16 m x 2.89 m |
| Upper Level | Bedroom 3 | 3.33 m | 2.46 m | 3.33 m x 2.46 m |
| Upper Level | Bedroom 4 | 2.94 m | 2.51 m | 2.94 m x 2.51 m |
| Upper Level | Bathroom | 2.22 m | 1.41 m | 2.22 m x 1.41 m |
| Cable | Installed |
| Electricity | Installed |
| Sewer | Installed |
https://www.realtor.ca/real-estate/29383251/585-burwash-street-cobourg-cobourg
Tammy Archer
Salesperson
(905) 372-2552
www.remaxrougeriver.com/